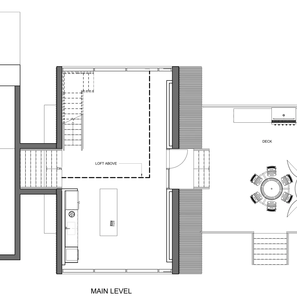
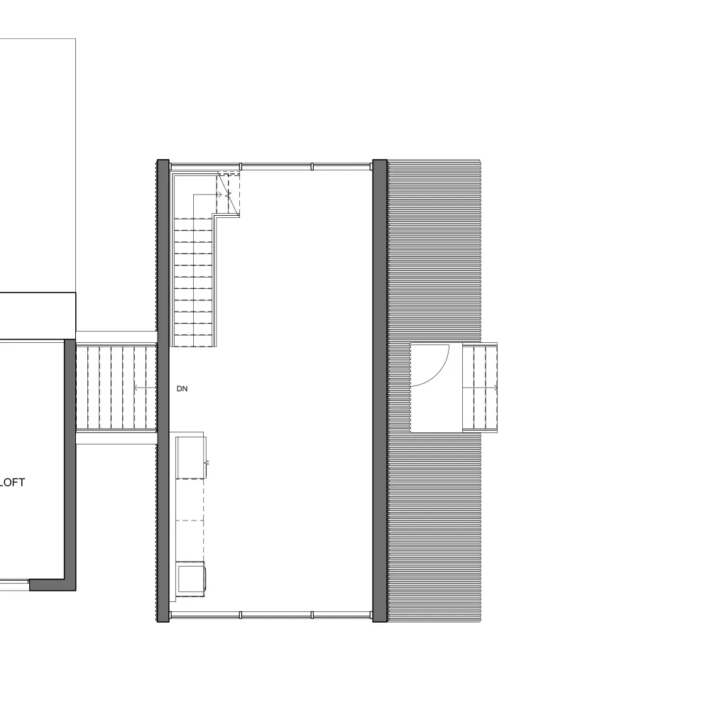
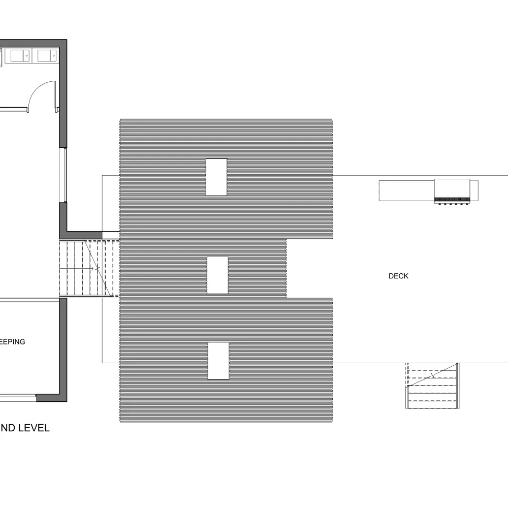
The building responds to the site through careful massing and scale. Cantilevers extend the structure into open space, piloti lift portions above uneven terrain, and decks provide direct connection to views while minimizing impact on the ground. Materials—including wood, stone, steel, and glass—are used to balance natural integration with modern expression.
The approach emphasizes the relationship between building and site. The cottage frames views, mediates between ground and landscape, and articulates form clearly without overwhelming the environment.