' '  Location: Winnipeg, Manitoba
Client: Christine Baronins
Budget: N/A
Area: 150 sm
Category: Residential
Date Completed: 2014 (Design)

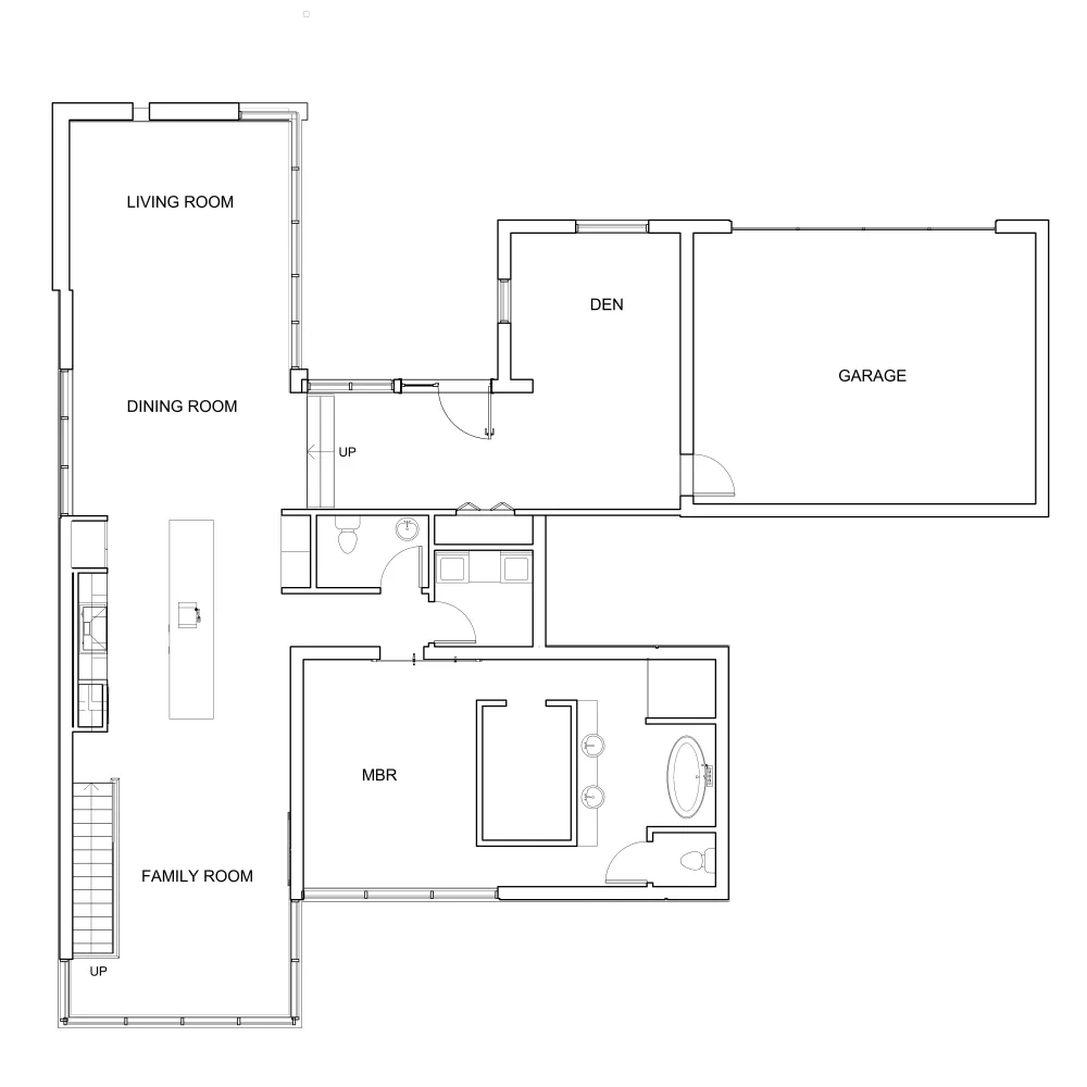
This house was designed for a vacant lot on Southboine Drive in Winnipeg. Conceived as the family’s final home, it is organized as a single-storey dwelling with the master bedroom on the main level and two additional bedrooms located in a walkout basement. At the heart of the design is the open kitchen, envisioned as the primary space for daily activity and entertaining.