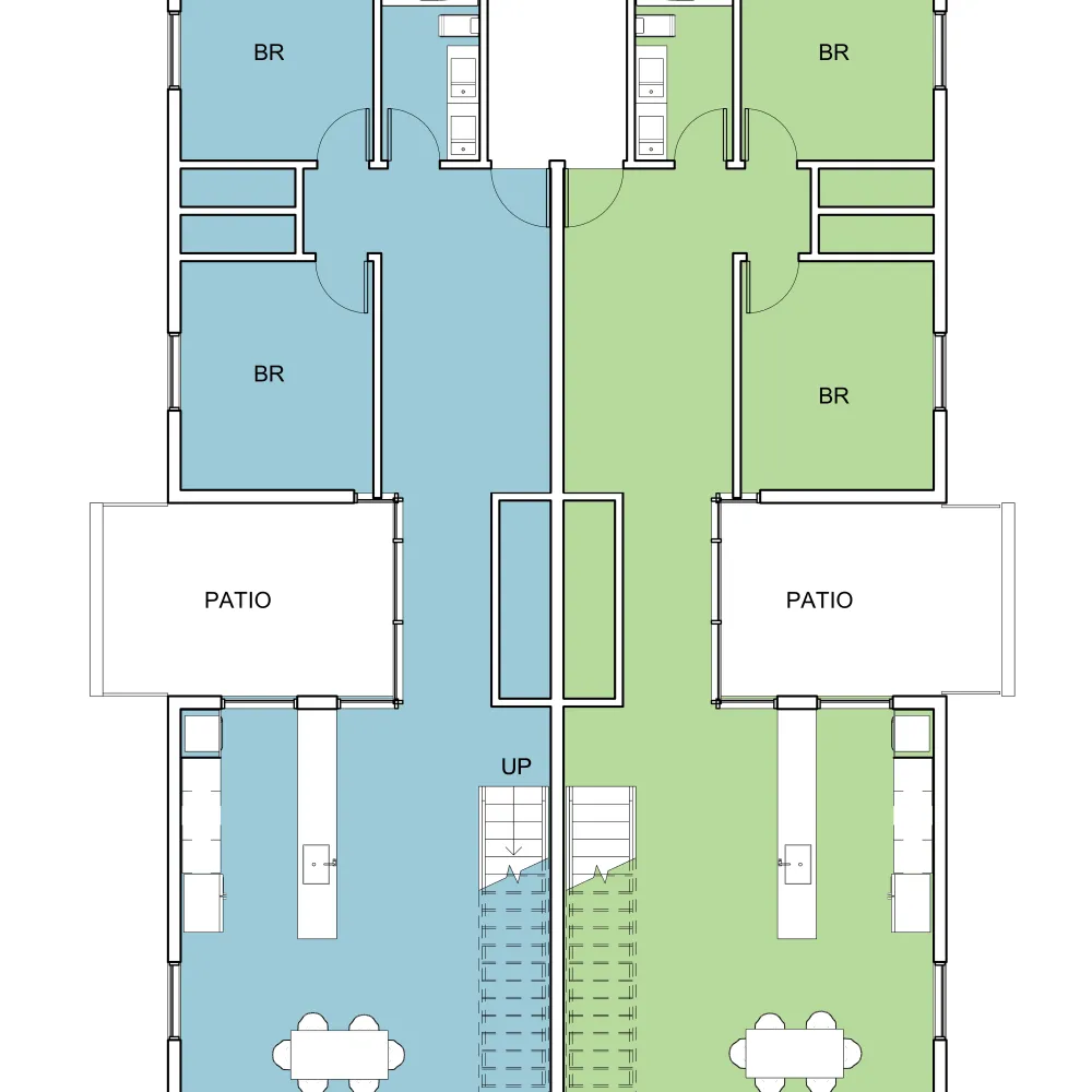
Protected and semi-protected outdoor spaces were integrated adjacent to every unit, extending living areas outward and fostering a connection to the outdoors. Vertical circulation modules—containing stairs and elevators—provided direct access from the covered parking level to all residences above.
The result is a flexible, light-filled housing model that balances density with livability and architectural presence.
The design consists of two buildings, allowing the project to be developed in phases. Two possible program options were studied:
- Option A: 12 units, each 1,100 square feet, with two bedrooms and two bathrooms.
- Option B: 8 units, including four 1,500 square foot three-bedroom units and four two-bedroom units.
Each level incorporates a central light well or shared patio, introducing natural light and views into the units while reducing building mass to create a more comfortable scale. Units are stacked to allow for covered balconies, extending living space outdoors.
Parking and sheltered access are provided at grade and located discreetly at the rear of the site.
The result is a compact, flexible housing solution that integrates density into an established neighborhood while maintaining livability, light, and a sense of openness.